ページ
ホーム
2012年4月27日金曜日
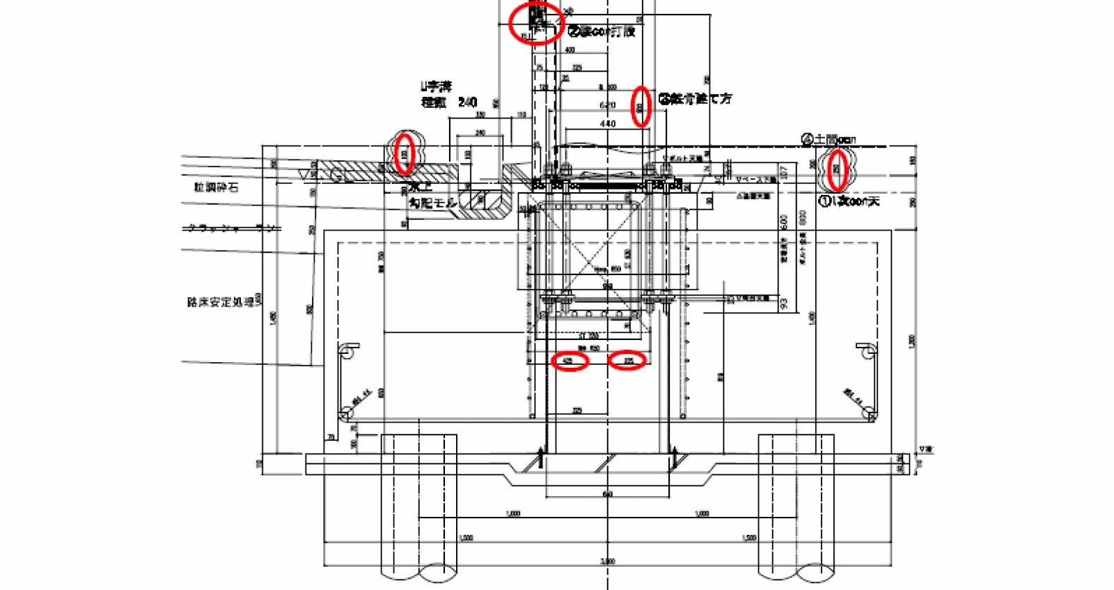
基礎から腰壁サッシまで一度に計画
建物基礎の検討の場合、アンカーフレーム干渉の検討をして
そこで終わらせてしまうことが多いようですが一度に腰壁から
サッシ、外壁仕上げ面まで検討することをお勧めします。
・杭頭補強や基礎との位置関係
・水平打ち継ぎの順序
・地中梁と土間の関係
・腰壁の型枠高さ
・建て方のタイミング
・汎用サッシと腰壁・角波の関係
・樋と地中梁の干渉
・外構取り合い等、、、、
最初に問題を明快にすると後の検討が
スムーズになります。詳細断面図は作成するといろんな面が
見えてきます。
施工手順と歩掛りが判れば工程が組め、コストダウンの
糸口が見つかります。
T.N
0 件のコメント:
コメントを投稿
次の投稿
前の投稿
ホーム
登録:
コメントの投稿 (Atom)
0 件のコメント:
コメントを投稿