ページ

2013年4月4日木曜日

点字ブロックの配置



点字ブロックの配置について検討しました。

というのも・・・

建物の出入り口への点字ブロックは出入り口の巾の中心
配置するものと思っていましたが、使い勝手や理由を明確に
すれば位置を変更することが出来ることを知ったからです。

まず点字ブロックの設置基準ですが・・・

下記は国際交通安全学会の点字ブロックの設置基準です。

・頭上及び周囲30cm 以内に障害物がない箇所に設置すること。
・移動方向を認識しやすいこと。
・必要な場所に誘導されていること。
・連続性を保つこと。
・屈曲部の角度(内角)が135 度以上の場合にはその箇所に
 警告ブロックを設置しないこと。
・足裏の触感覚でブロックの方向を認識できる程度の面積が
 あること。

設置に当たっては、これらの基準を満たす必要があります。

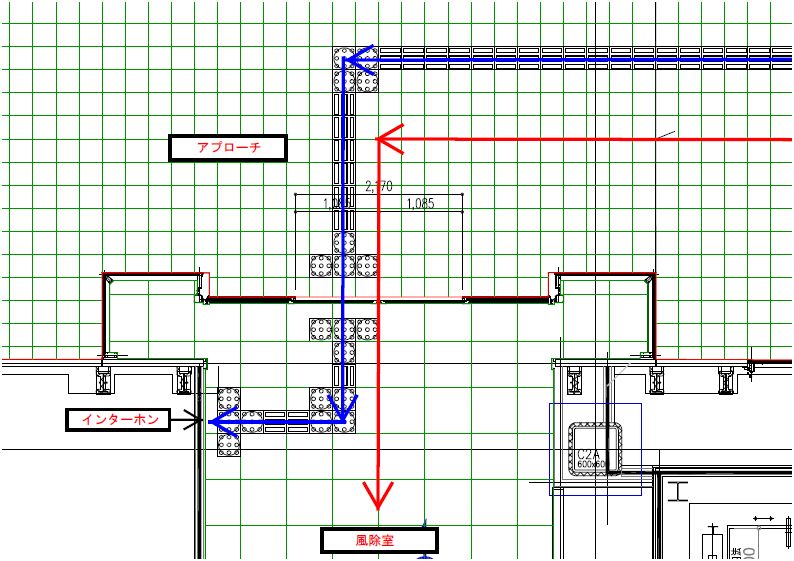
今回の設計図に記載された点字ブロックの位置はアプローチ
の通路巾の中心
にあり、また出入り口の開口巾の中心となって
いました。

これだと一般入場者と視覚障害者が同じ動線となっていますが
アプローチの通路巾は3500、出入り口の有効巾は2100と十分な
幅員があり、複数の動線が並行させても通行には影響がない
考えました。

下図のように点字ブロックを配置することで視覚障害者(青)
一般入場者(赤)の動線と重なることなくスムーズにインターホン
に到達することができます。




また一般入場者の中には足の不自由な方やベビーカーを利用する
方もいることを考えると平滑な床面の方が歩きやすいと思います。



これらの検討に当たっては、点字ブロックの設置について、他の
協会や行政機関等で「個別の基準を設けていることがあるので
事前に確認が必要です。

KN

0 件のコメント:

コメントを投稿